Bilocale in vendita

Borgo San Giacomo, Via Molino - Farfengo
€ 69.000
2 locali 2 locali
62 Mq 62 Mq
1 bagno 1 bagno

Bilocale in vendita

Borgo San Giacomo, Via Molino - Farfengo

Descrizione annuncio

BORGO SAN GIACOMO FRAZ. FARFENGO:

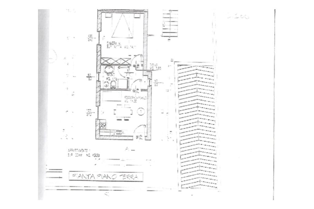
In vendita appartamento bilocale posto al piano terra, dotato di giardino di proprietà esclusiva, inserito in contesto residenziale ordinato.

L’unità immobiliare presenta una distribuzione interna funzionale e ben organizzata. L’ingresso avviene direttamente nella zona giorno open space, ambiente unico destinato a soggiorno e cucina a vista, con superficie idonea ad accogliere area pranzo e zona living. Il locale risulta facilmente arredabile grazie alla conformazione regolare degli spazi e dispone di accesso diretto all’area esterna di pertinenza.

La zona notte, separata dal living, è composta da camera da letto matrimoniale di metratura adeguata per letto matrimoniale, armadiatura lineare o a ponte e ulteriori complementi d’arredo. Il bagno è completo di sanitari, lavabo e box doccia/vasca (in base alla configurazione effettiva), con predisposizione o spazio dedicato per elettrodomestici.

Il giardino privato, accessibile direttamente dalla zona giorno, costituisce pertinenza esclusiva dell’immobile. Lo spazio esterno può essere destinato ad area verde, zona pavimentata o spazio multifunzionale, nel rispetto delle normative vigenti e del regolamento condominiale ove presente.

L’immobile, sviluppato interamente su un unico livello, garantisce facilità di accesso e fruibilità degli ambienti. La tipologia risulta idonea per utilizzo come abitazione principale, soluzione per single o coppie, nonché come investimento immobiliare per locazione residenziale.

Disponibili su richiesta ulteriori dettagli

Mostra tutto

Nelle vicinanze

Bar Bar
Kendall
1,7 Km
Vanigliò
2,4 Km
Ristoranti Ristoranti
SoleBistro
250 m
Locanda del Vegnòt
1,7 Km
Cascina La Bianca
1,8 Km
Norcineria
1,9 Km
La Dispensa di Padernello
1,9 Km
Mostra tutto

Caratteristiche

Rif.:
61179200
Piano:
Basso
Posti auto:
1
Camere da letto:
1
Condizionamento:
Assente
Ascensore:
No
Mostra tutto
Prezzo Prezzo
€ 69.000
Rata mutuo Rata mutuo
€ 328 / mese
Spese annue Spese annue
€ 0
Proponi il tuo prezzoProponi il tuo prezzo
Immobile valutato con T·Valuta

Classe Energetica

Questo immobile è esente da classe energetica
Anno di costruzione:
1980
Riscaldamento:
Autonomo
Tipo impianto:
A radiatori
Tipo alimentazione:
Metano

Ti interessa visionare l'immobile?

Fissa un appuntamento  Fissa un appuntamento

Richiedi informazioni

Clicca su Leggi per aprire l'informativa
* Questi campi sono obbligatori

Calcola il tuo mutuo

Semplice e senza impegno
Anticipo

( % )
Mutuo

( % )

pochi semplici passi

inserisci i tuoi dati
Questionario completato
Grazie per aver richiesto un appuntamento senza impegno con un nostro Consulente del Credito e Assicurativo.

Hai inserito correttamente tutti i dati necessari e a breve riceverai una e-mail con un link da convalidare per inviare i tuoi dati.
Affiliato
Tecnosoncino Srl
Via Roma, 15 25034 Orzinuovi (BS)

Il nostro staff


  • Michele Tavelli
    Affiliato

  • Kirandeep Kaur
    Collaboratrice

  • Gianluca Longhi
    Collaboratore

  • Jessica Ranghetti
    Collaboratrice
Via Roma, 15 25034 Orzinuovi (BS)
Zona: Orzinuovi
Mostra su mappa
Affiliato
Tecnosoncino Srl
Via Roma, 15 25034 Orzinuovi (BS)

2026 Tecnocasa Franchising S.p.A. - P. IVA 08365160152 - Via Monte Bianco 60/A 20089 Rozzano (MI). Ogni agenzia ha un proprio titolare ed è autonoma. Privacy policy | Policy utilizzo | Cookie policy