Casa di corte in vendita

Borgo San Giacomo, Via roma
€ 95.000
Prezzo aggiornato
3 locali 3 locali
110 Mq 110 Mq
1 bagno 1 bagno

Casa di corte in vendita

Borgo San Giacomo, Via roma

Descrizione annuncio

BORGO SAN GIACOMO:

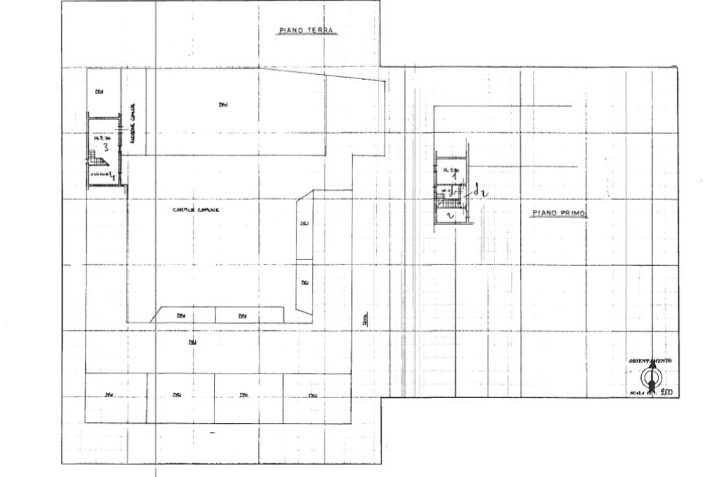
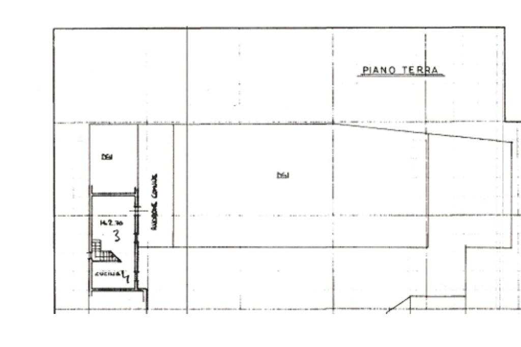
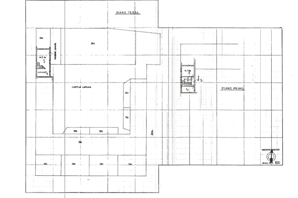
Nel centro di Borgo San Giacomo, in contesto di corte tranquillo e riservato, proponiamo in vendita una casa disposta su due livelli.

L’immobile, conserva le caratteristiche tipiche delle case di corte, offrendo ambienti funzionali e ben distribuiti. L’ingresso al piano terra conduce alla zona giorno, uno spazio accogliente che ospita il soggiorno con cucina, pensato per la quotidianità e la convivialità. La disposizione degli ambienti permette di organizzare al meglio arredi e spazi, rendendo l’ambiente pratico e vivibile. Sempre al piano terra è presente un comodo ripostiglio ricavato nel sottoscala, soluzione utile per organizzare dispensa, oggetti di uso quotidiano o piccoli elettrodomestici, ottimizzando così gli spazi.

Salendo al primo piano si sviluppa la zona notte, composta da due camere matrimoniali di buone dimensioni, luminose e facilmente arredabili, adatte sia a una coppia con figlio sia a chi necessita di una seconda stanza da adibire a studio o locale hobby. Il piano è completato da un bagno finestrato, funzionale e ben proporzionato.

La proprietà dispone inoltre di un posto auto all’interno della corte, elemento che aggiunge praticità e valore alla soluzione, garantendo comodità di parcheggio a pochi passi dall’ingresso di casa.

Si tratta di una proposta interessante per chi è alla ricerca di una casa dal carattere semplice e autentico, in un contesto tranquillo ma non isolato, perfetta come abitazione principale oppure come investimento da mettere a reddito. La posizione nel comune di Borgo San Giacomo consente di vivere in un ambiente sereno, con i servizi essenziali nelle immediate vicinanze e buoni collegamenti con i centri limitrofi.

Per ulteriori informazioni o per organizzare una visita, siamo a completa disposizione.

Mostra tutto

Nelle vicinanze

Bar Bar
Vanigliò
190 m
Ristoranti Ristoranti
Locanda del Vegnòt
2,1 Km
L'Aquila Rossa
2,1 Km
La Dispensa di Padernello
2,2 Km
Norcineria
2,2 Km
Cascina La Bianca
2,2 Km
Mostra tutto

Caratteristiche

Rif.:
61182615
Piano:
Terra di 1
Totale piani:
1
Posti auto:
1
Camere da letto:
2
Arredamento:
Parziale
Mostra tutto
Prezzo Prezzo
€ 95.000
Rata mutuo Rata mutuo
€ 444 / mese
Spese annue Spese annue
€ 0
Proponi il tuo prezzoProponi il tuo prezzo

Classe Energetica

G
G
G
G
G
G
G
G
G
EP globale rinnovabile:
337.91 kW h/m² anno
Anno di costruzione:
1990
Riscaldamento:
Autonomo
Tipo impianto:
A radiatori
Tipo alimentazione:
Metano

Prezzo ridotto di €1 (5%%)

Ti interessa visionare l'immobile?

Fissa un appuntamento  Fissa un appuntamento

Richiedi informazioni

Clicca su Leggi per aprire l'informativa
* Questi campi sono obbligatori

Calcola il tuo mutuo

Semplice e senza impegno
Anticipo

( % )
Mutuo

( % )

pochi semplici passi

inserisci i tuoi dati
Questionario completato
Grazie per aver richiesto un appuntamento senza impegno con un nostro Consulente del Credito e Assicurativo.

Hai inserito correttamente tutti i dati necessari e a breve riceverai una e-mail con un link da convalidare per inviare i tuoi dati.
Affiliato
Tecnosoncino Srl
Via Roma, 15 25034 Orzinuovi (BS)

Il nostro staff


  • Michele Tavelli
    Affiliato

  • Kirandeep Kaur
    Collaboratrice

  • Gianluca Longhi
    Collaboratore

  • Jessica Ranghetti
    Collaboratrice
Via Roma, 15 25034 Orzinuovi (BS)
Zona: Orzinuovi
Mostra su mappa
Affiliato
Tecnosoncino Srl
Via Roma, 15 25034 Orzinuovi (BS)

2026 Tecnocasa Franchising S.p.A. - P. IVA 08365160152 - Via Monte Bianco 60/A 20089 Rozzano (MI). Ogni agenzia ha un proprio titolare ed è autonoma. Privacy policy | Policy utilizzo | Cookie policy